新築一戸建て知立市逢妻町丸坪2号棟
2026年2月完成予定
支払例
※中京銀行/借入金1,890万円、返済期間35年、金利0.450%(変動)の場合
※審査により金利は変わる可能性があります。
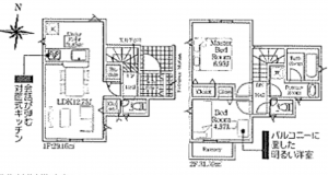
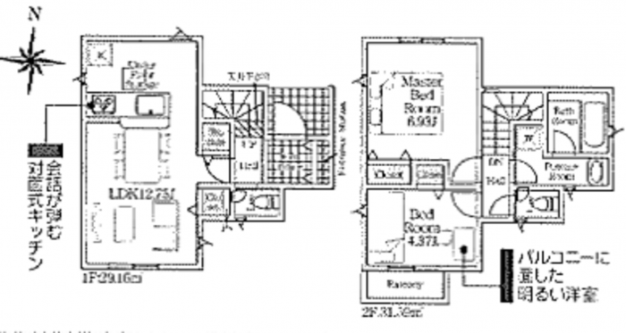
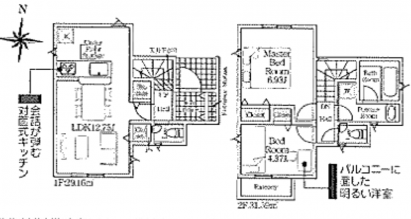
物件概要
- 所在地
- 知立市逢妻町丸坪2号棟
- 価格
- 1,890 万円
- 交通
-
名鉄名古屋本線 知立駅 まで 徒歩19分
- 接道状況
- 北側 公道4.6m 間口約9.2m
- 土地面積
- 実測 63.96㎡ (19.34坪)
- 建物面積
- 60.75㎡ (18.37坪)
- 間取り
- 2LDK
- 築年数
- 建ぺい率
- 60%
- 容積率
- 188%
- 土地権利
- 所有権
- 構造および階数
- 木造 地上2階建
- 小学校区
- 知立 (1000m)
- 中学校区
- 竜北 (2433m)
- 私道負担
- 地目
- 宅地
- 現況
- 空
- 引渡時期
- 期日指定
- 駐車場
- 上水道
- 下水道
- ガス
- 都市計画
- 市街化区域
- 用途地域
- 1種住居
- 設備・条件
- 備考
- 取引態様
- 仲介
知立市逢妻町周辺の一戸建て
-
新築一戸建て 知立市逢妻町丸坪1号棟
月々支払例:71,809円* *35年ローン / 金利0.450%の場合 ※審査により金利は変わる可能性があります。
詳しくは詳細ページをご覧ください。写真充実 間取り有更新日:2026/03/07
-
新築一戸建て 知立市西町新川B棟
月々支払例:76,699円* *35年ローン / 金利0.450%の場合 ※審査により金利は変わる可能性があります。
詳しくは詳細ページをご覧ください。写真充実 間取り有更新日:2026/03/11
-
PRICE DOWN新築一戸建て 知立市西町新川A棟
月々支払例:86,995円* *35年ローン / 金利0.450%の場合 ※審査により金利は変わる可能性があります。
詳しくは詳細ページをご覧ください。写真充実 間取り有更新日:2026/04/18
-
PRICE DOWN新築一戸建て 知立市逢妻町桜Atype
月々支払例:84,421円* *35年ローン / 金利0.450%の場合 ※審査により金利は変わる可能性があります。
詳しくは詳細ページをご覧ください。写真充実 間取り有更新日:2026/04/16
-
中古一戸建て 知立市逢妻町金山
月々支払例:****円* *35年ローン / 金利0.450%の場合 ※審査により金利は変わる可能性があります。
詳しくは詳細ページをご覧ください。間取り有 駐車場2台可更新日:2026/03/19
*35年ローン / 金利0.450%の場合
※審査により金利は変わる可能性があります。
詳しくは詳細ページをご覧ください。
この物件は717人の
方が興味を持っています

